Our Homes

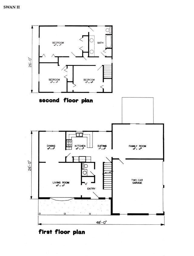
Swan II

''Download/View Full Details

2 Story
3 Bedroom- 1 1/2 Bath
1726 Square Feet
$2236,800


The elegance of this traditional two-story is accenuated by a full front porch, bow window and two car garage.

This floor plan reveals a true “family home” in every sense of the words.

A U-shaped kitchen with an adjacent eating area and traffic pattern that flows into the spacious family room highlight the firs floor area.

The second level offers the choice of a three or four bedroom design and plenty of the “never enough” closet space.

 



Pricing is for completly finished home including lots priced at $54,900.00 - Some lots require additional site work with additional fees. Uniform Construction Code Requirements included. Prices are subject to change. You may also view our full price list.

Although all plans and specifications are believed to be correct at the time of page development, complete accuracy cannot be guaranteed. The right is reserved to make changes without notice or obligation. Room sizes shown are approximate. Water heater, sump pit, and utility entrance may vary. Basement windows may vary per grade.